Maison - À vendre
Rue Antoine Nélis 199,
BELGRADE 5001
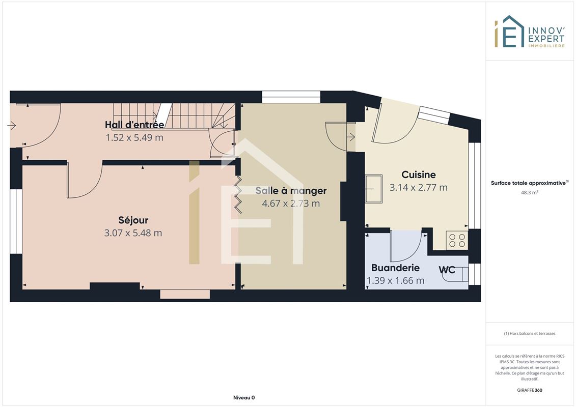
- Surface habitable : 162 m²
- Terrain : 246 m²
- Jardin : 246 m²
- Étage(s) : 2

- Chambre(s) : 3
- Salle(s) de bain : 1
- Type de cuisine : Non communiqué
- Garage(s) : 0
SOUS OPTION
Informations générales
| Type de propriété | Maison |
| État du bâtiment | À rénover |
| Nombre d'étage(s) | 2 |
| Revenu cadastral | 711,00 € |
Intérieur
| Surface habitable | 162 m² |
| Nombre de chambres | 3 |
| Nombre de salles de bain | 1 |
Extérieur
| Superficie du jardin | 246 m² |
| Nombre de terrasses | 0 |
| Nombre de garages | 0 |
Énergie
| Classe énergétique | ![]() |
| Code unique PEB | 20251003018969 |
| Consommation d'énergie | 467 kwh/m²/an |
| Consommation théorique totale | 66249 kwh/an |
| Emission CO2 | 116 Kg |
Prix
175.000 €
Nos derniers biens
Ce bien ne vous a pas convaincu ?
Dites-en nous plus sur votre recherche !

















































