Maison - À vendre
Rue du Rauysse 4,
YVOIR 5530
- Surface habitable : 117 m²
- Terrain : 50 m²
- Jardin : 0 m²
- Étage(s) : 2

- Chambre(s) : 2
- Salle(s) de bain : 1
- Type de cuisine : Semi-équipée
- Garage(s) : 1
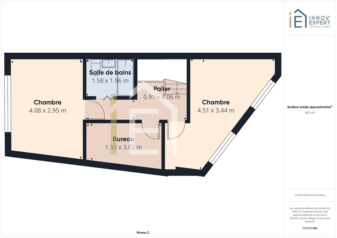
OPTION - INNOV'EXPERT immobilière vous invite à venir découvrir cette maison bel-étage, idéalement située dans une rue calme à proximité directe de toutes les commodités. Elle vous séduira par son agencement idéal et son beau potentiel d'aménagement. Un balcon terminera de vous convaincre ! (PAS DE JARDIN). Composition au rez-de-chaussée : Hall d'entrée, pièce de service avec WC, garage. Composition 1er étage : Grand espace ouvert de 37 m2 comprenant séjour, cuisine et salle à manger. Composition au 2ème et 3ème étage : Hall, 2 chambres, bureau, salle de bain avec WC, grenier aménageable. Côté équipements et techniques : chauffage central au mazout, châssis en bois avec double vitrage partout, toiture en ardoises, tout à l'égout, .. Belle opportunité à ne pas manquer, n'hésitez pas à nous contacter au 081 84 90 57.
Informations générales
| Type de propriété | Maison |
| État du bâtiment | Bon état |
| Nombre d'étage(s) | 2 |
| Revenu cadastral | NC |
Intérieur
| Surface habitable | 117 m² |
| Nombre de chambres | 2 |
| Nombre de salles de bain | 1 |
Extérieur
| Superficie du jardin | 0 m² |
| Nombre de terrasses | 1 |
| Nombre de garages | 1 |
Énergie
| Classe énergétique | ![]() |
| Code unique PEB | 20240524017033 |
| Consommation d'énergie | 409 kwh/m²/an |
| Consommation théorique totale | 47216 kwh/an |
| Emission CO2 | 102 Kg |
Prix
185.000 €
Nos derniers biens
Ce bien ne vous a pas convaincu ?
Dites-en nous plus sur votre recherche !

































