Appartement - À vendre
Rue de l'Aise 2,
JEMEPPE-SUR-SAMBRE 5190
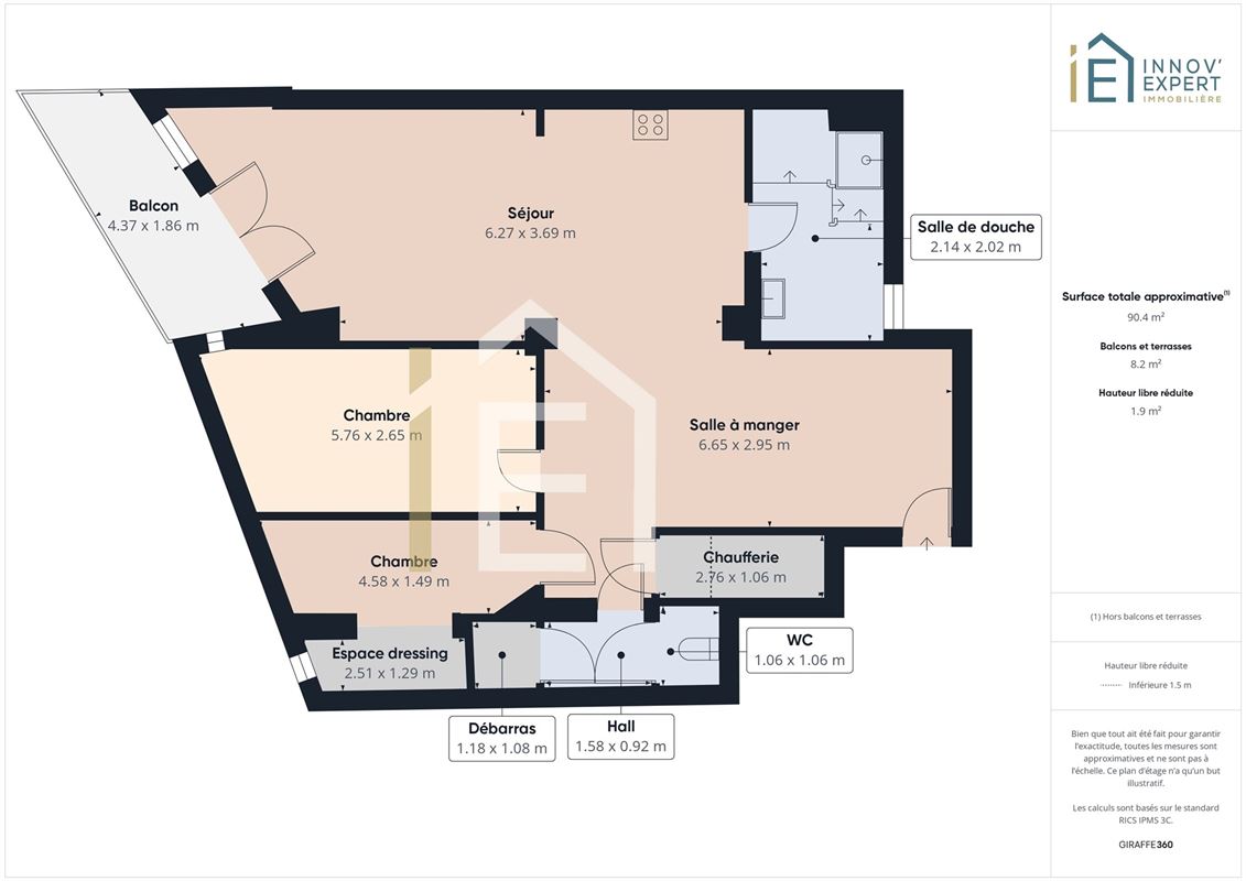
- Surface habitable : 90 m²
- Terrain : 0 m²
- Jardin : 0 m²
- Étage(s) : 2

- Chambre(s) : 2
- Salle(s) de bain : 1
- Type de cuisine : Non communiqué
- Garage(s) : 1
OPTION - INNOV'EXPERT immobilière vous invite à venir découvrir ce spacieux appartement de +/- 90 m2, idéalement situé dans une petite copropriété, à proximité directe de toutes les commodités. Il vous séduira par son agencement et son très bon état général. Une belle terrasse de +/- 8 m2 terminera de vous convaincre ! Composition : grand espace ouvert de +/- 42 m2 comprenant séjour, salle à manger et cuisine équipée, salle de douche, 2 chambres dont 1 avec espace dressing, chaufferie, débarras, WC séparé. Un garage fermé est inclus dans le prix. Côté équipements et techniques : chauffage central au gaz de ville (chaudière individuelle Bulex), électricité conforme (compteur individuel), châssis en PVC avec double vitrage, compteur individuel pour l'eau, .. l'appartement est actuellement loué 750 eur / mois sans le garage. Quotités : 1610/10.000. Belle opportunité à ne pas manquer, n'hésitez pas à nous contacter au 081 84 90 57.
Informations générales
| Type de propriété | Appartement |
| État du bâtiment | Excellent état |
| Nombre d'étage(s) | 2 |
| Revenu cadastral | NC |
Intérieur
| Surface habitable | 90 m² |
| Nombre de chambres | 2 |
| Nombre de salles de bain | 1 |
Extérieur
| Superficie du jardin | 0 m² |
| Nombre de terrasses | 1 |
| Nombre de garages | 1 |
Énergie
| Classe énergétique | ![]() |
| Code unique PEB | 20160909013538 |
| Consommation d'énergie | 222 kwh/m²/an |
| Consommation théorique totale | 28518 kwh/an |
| Emission CO2 | NC |
Prix
185.000 €
Nos derniers biens
Ce bien ne vous a pas convaincu ?
Dites-en nous plus sur votre recherche !

























