Maison - Nouveau
Impasse Botte 30,
AUVELAIS 5060
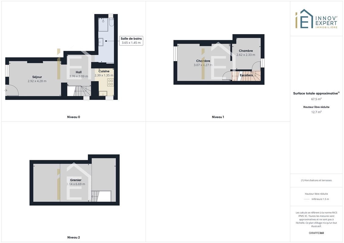
- Surface habitable : 67 m²
- Terrain : 248 m²
- Jardin : 193 m²
- Étage(s) : 2

- Chambre(s) : 2
- Salle(s) de bain : 1
- Type de cuisine : Cuisine équipée
- Garage(s) : 0
INNOV'EXPERT immobilière vous invite à venir découvrir cette belle maison, idéalement située dans une rue calme à proximité de toutes les commodités. Elle vous séduira par son agencement idéal et son bon état général. Jardin non-attenant. Composition au rez-de-chaussée : séjour, cuisine, salle de bain, hall. Composition étages : 2 chambres, grenier de rangement. Côté équipements et techniques : radiateurs électrique, châssis en PVC avec double vitrage partout, toiture isolée, tout à l'égout, ... Libre immédiatement. Loyer de 740 € / mois. Belle opportunité à ne pas manquer, n'hésitez pas à nous contacter au 081 84 90 57.
Informations générales
| Type de propriété | Maison |
| État du bâtiment | Habitable immédiatement |
| Nombre d'étage(s) | 2 |
| Revenu cadastral | 154,00 € |
Intérieur
| Surface habitable | 67 m² |
| Nombre de chambres | 2 |
| Nombre de salles de bain | 1 |
Extérieur
| Superficie du jardin | 193 m² |
| Nombre de terrasses | 0 |
| Nombre de garages | 0 |
Énergie
| Classe énergétique | ![]() |
| Code unique PEB | 20151019000499 |
| Consommation d'énergie | 424 kwh/m²/an |
| Consommation théorique totale | 35716 kwh/an |
| Emission CO2 | 121 Kg |
Prix
740 €
Nos derniers biens
Ce bien ne vous a pas convaincu ?
Dites-en nous plus sur votre recherche !
































